84333
Malgersdorf

Malgersdorf: Neubau-REH, Effizienzhaus-40-Standard, Wärmepumpe, PV-Anlage, auf Erbbaurecht!

5 Zimmer 120 m² Reiheneckhaus in Malgersdorf zum Kauf. Ausstattung: Terrasse, etc.
Kaufpreis
370.000 €
Objektart
Haus
Baujahr
2026
Stellplätze
3
Zimmer
5
Badezimmer
2
Schlafzimmer
4
Terassen
1
Wohnfläche
120 m²
Grundstücksfläche
250,00 m²
Verfügbar ab
Ende 2026
Objektbeschreibung

Sehr geehrte Leserinnen und Leser dieses Exposés,

dieses top moderne Reihenhaus in Massiv-Bauweise wird errichtet im
"Effizienzhaus-40-Standard" inklusive einer Photo-Voltaik-Anlage auf dem Dach,
mit 5 Zimmern, 2 Bädern und einer Garage im Untergeschoss für 2 Kfz, sowie einem weiteren Kfz-Außenstellplatz.
Es befindet sich in einer ruhigen Siedlungslage von Malgersdorf und ist daher ideal für Menschen, die sowohl Simbach, Dingolfing, Landau, Reisbach oder Frontenhausen erreichen wollen.
Das Haus eignet sich sowohl von seiner Größe, mit ca. 120 qm² Wohnfläche
(inkl. anrechenbarer Terrassenfläche) als auch aufgrund seines familienfreundlichen Grundrisses und der Lage, mit der örtlichen Infrastruktur, hervorragend für eine Familie, als Lebensmittelpunkt für viele Jahre!

Das Haus wird auf einem Grundstück mit ca. 250m² Größe errichtet.

Das Haus wird in 2026 im Rohbau errichtet und wird Ende 2026 fertiggestellt.

Erneuerbare Energien

Der Einsatz erneuerbarer Energien findet durch den Einbau der Luft-Wärmepumpe
statt, kombiniert durch die Energiegewinnung durch die Photo-Voltaik-Anlage
auf dem Dach.

Gerne stellen wir Ihnen die geplante Innenausstattung vor, die aber auch nach Ihren Vorstellungen verändert werden kann (veränderte Preise).

Neben der Nutzung zum Selbstbezug, ist dieses Haus sicher aber auch ein interessantes Angebot zur Kapitalanlage. Der jährliche Erbbaurecht-Zins kann hier bei einer Vermietung, in der Steuererklärung, als Kostenposition abgesetzt werden.

Erbbaurecht:

Ein paar technische Daten:

Das Haus befindet sich auf einem Grundstück, das sich im Erbbaurecht der Kirche befindet.

Was heißt Erbbaurecht: Das Erbbaurecht ermöglicht auf dem Grundstück Eigentum zu schaffen.
Das Erbbaurecht stellt ein grundstückgleiches Recht dar. Für die Belastung
des Grundstücks mit einem Erbbaurecht erhält der Eigentümer
einen regelmäßigen Erbbauzins

Der Erbbaurechtsvertrag läuft über jetzt noch 96 Jahre.
Der Erbbaurecht-Zins für das Haus beträgt EUR 206,66 jährlich,
= monatlich EUR 17,22.
Jeweils nach 3 Jahren findet eine Anpassung des Erbbauzinses nach dem
Verbraucherpreis-Index statt.

Lage

Das Grundstück liegt eingebettet in einer Wohnsiedlung in Malgersdorf, erschlossen durch eine ruhige Siedlungsstraße ohne Durchgangsverkehr, mit Wendehammer.
In Malgersdorf befindet sich eine Bäckerei mit EDEKA-Laden und eine Metzgerei, sowie eine Landgaststätte und eine Tankstelle mit "Shop".
Dingolfing, Landau, Reisbach oder Frontenhausen sind mit dem Auto gut zu erreichen.

Ausstattung

Das Haus:
Reihen-Endhaus in moderner Massiv-Bauweise, Außenwände errichtet mit Ytong-Plansteinen. Außenwände 42,5cm, tragende Innenwände aus Ytong-Mauerwerk mit einer Stärke von 17,5cm, nichttragende Wände mit einer Stärke von 11,5cm,

-Das Haus ist ein sog. Hanghaus, Garage für 2 Fahrzeuge im Untergeschoss,
hier auch der Hauswirtschaftsraum und eine praktische Abstellfläche im Treppenhaus
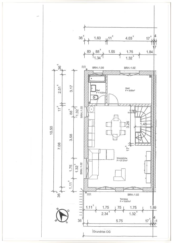
-im Erdgeschoss ist das Wohnzimmer geplant, mit Ausgang auf die Südterrasse,
-sowie ein Gästezimmer/Büro und ein Gästebad
-das Obergeschoss ist mit 3 Schlafzimmern und 1 Bad ausgestattet

Ausstattung:
-innen weiße Kunststoff-Fenster und –Außentüren mit energiesparender Qualitätsisolier- und Wärmeschutzverglasung (3-fach)
mit UG-Wert von 0,76 W/m²K, außen anthrazit-farben,
-lichtgraue Kunststoff-Rollläden mit wärmegedämmten Rolladenkasten,
-Beheizung mit Luft-Wärmepumpe,
- sehr angenehme Fußbodenheizung im gesamten Wohnbereich,
-Kabelanschluss vorhanden,
-Laminatböden in den Wohnräumen, wahlweise Vinylboden oder Parkettboden,
-Fliesenböden in der Diele, im Bad, im Hauswirtschaftsraum,
-Raumhöhe ca. 2,50 m,

Außen-Anlagen:
-Gartenflächen werden als Rasen angesät,
-Einfriedung des Grundstücks mit Doppelstab-Mattenzaun,
-Sichtabtrennung der Terrassen,

Erdgeschoss
-Hauswirtschaftsraum mit Heizung, Anschlüsse für WAMA und Trockner,
-sehr praktisch: direkter Aufgang von der Garage in die Wohnung,
-großzügiger Eingangsbereich mit praktischen Abstellflächen,
-Einfahrt in die Garage: für 2 Kraftfahrzeuge, elektr. betriebenes Einfahrtstor,
eine Wallbox für Elektro-Fahrzeuge,

-zusätzlicher 3. Kfz-Außenstellplatz,

Obergeschoss
-mit großer, heller Wohnlandschaft (ca. 38m²), offener Küche,
- 2 Ausgängen auf die Terrasse nach Südwesten, ein Ausgang in den Garten,
-Gästezimmer/Büro (ca. 10m²) mit Doppelfenster,,
-Gästebad mit Wanne, Waschbecken, WC, sehr angenehm mit Fenster,
-große Terrasse nach Südwesten (ca. 19m²)

Dachgeschoss
-2 Schlafzimmer mit Giebelfenster und jeweils ca. 14m² Wohnfläche,
1 Schlafzimmer/Büro mit Dachfenster und ca. 8m² Wohnfläche,
-Bad (ca.7m²) mit bodengleicher Dusche, Waschbecken und WC,
elektrischer Handtuchhalter-Heizkörper, mit Dachfenster,

Weitere Annehmlichkeiten:

-eigener, pflegeleichter Garten (Sondernutzung),

-DSL- und TV-Anschluss über Kabel,

-Anschluss für eine Wallbox für E-Fahrzeuge ist vorhanden,

-Im "Effizienzhaus-40-Standard" ist eine Photo-Voltaik-Anlage enthalten,

der Energiebedarfsausweis weist einen hervorragenden Wert von nur
11,0 kWh/(m²a) auf, Stufe A+, Baujahr des Gebäudes 2024,
Energieträger Strom – Luft-Wärmepumpe,

Weitere Details entnehmen Sie bitte der Baubeschreibung.

Sonstiges

Der Kaufpreis
beträgt EURO 370.000,-- für das Haus mit Garten, Luft-Wärmepumpe, PV-Anlage,
Garage für 2 Fahrzeuge und den Außenstellplatz.

Keine Käuferprovision!

Energieausweis

Energieausweis
BEDARF
Energiepass Gültig bis
September 7, 2034
Wertklasse
A+
Energiepass Ausstellung
2024-09-08

Lage

Sicher & Schnell

Vollständiges Exposé anfordern

Wir stehen Eigentümern, Erwerbern, Immobilienagenturen etc. als Informationsquelle für individuelle Marktpreise gerne zur Verfügung.

Weitere Angebote

Das könnte Sie auch interessieren

Top Angebote von Ihrem Immobilienmakler aus Haimhausen: Ob Einfamilienhaus, Büro, Villa oder Ferienwohnung etc. Bei uns in Haimhausen werden Sie fündig.

Worauf warten Sie?

Hinterlassen Sie uns Ihre Anfrage

Wir bearbeiten Ihr Anliegen zeitnah und melden uns anschließend bei Ihnen, um Ihnen weiterzuhelfen.