85777
Fahrenzhausen

Solide vermietetes Reihenmittelhaus in zentraler Lage von 85777 Fahrenzhausen

5 Zimmer 139 m² Reihenmittelhaus in Fahrenzhausen zum Kauf. Ausstattung: Einbauküche, Tiefgarage, Laminatboden, etc.
Kaufpreis
640.000 €
Stellplatz Kaufpreis
12.500 €
Objektart
Haus
Baujahr
2001
Austattung
Standard
Stellplätze
2
Zimmer
5
Wohnfläche
139 m²
Grundstücksfläche
180,00 m²
Nutzfläche
69 m²
Käuferprovision
2,00 % inkl. MwSt. Käuferprovision €
Objektbeschreibung

Einfamilienhaus als Mittelhaus eines im Jahr 2001 erbauten 6-Spänners, mit einer gesamt nutzbaren Fläche von ca. 210 m², davon ca. 140 m² Wohnfläche, verteilt auf EG, OG und DG.
Im Erdgeschoss befindet sich der Dreh- und Angelpunkt wohl jeder Familie: der Koch,- Ess,- und Wohnbereich, mit Ausgang zu Terrasse und Garten. Daneben gibt es auf dieser Etage noch den Eingangsbereich mit Platz für eine Garderobe, das Gäste-WC und eine Abstellkammer.
Im 1.Obergeschoss (erfreulicherweise ohne Schrägen) befinden sich 2 Schlafzimmer, wobei das größere mit über 20 m² bei Bedarf geteilt werden könnte, und ein Bad mit Wanne und Fenster.
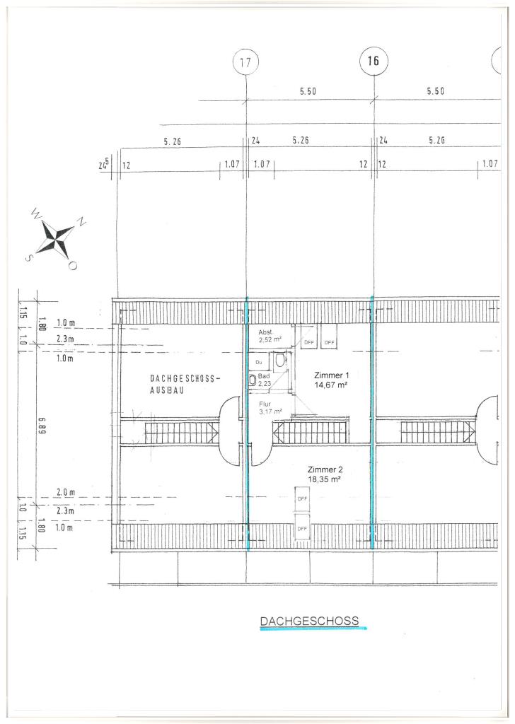
Das Dachgeschoss bietet zwei geräumige Zimmer und ein weiteres Bad mit Dusche und Fenster.
Auch das Untergeschoss ist hervorragend nutzbar, dort steht ein fast 23m² großer Keller zur vielfältigsten Nutzung zur Verfügung; über eine Schleuse gelangt man auf kürzestem Weg zur Tiefgarage. Die zwei zum Haus gehörenden Stellplätze befinden direkt im Anschluss an die Schleuse.

Neben der soliden Bauweise und guten Raumaufteilung ist natürlich die Lage das wichtigste Kriterium. Auch hier ist dieses Haus erste Klasse: man wohnt zentrumsnah, Bäckerei, Metzgerei, Tankstelle, Gaststätten und ein sehr schöner Biergarten sind fußläufig in 2 Minuten erreichbar
Mehrere Lebensmittelmärkte, sowie Kindergarten und Grundschule sind am Ort vorhanden. Zum S-Bahnhof der S1 nach München, oder, in der anderen Richtung, nach Freising und zum Flughafen, sind es ca. 8 Kilometer, die Haltestelle des Zubringerbusses ist nur wenige Meter vom Haus entfernt.

Das Haus ist solide vermietet, zu attraktiven Konditionen für einen Kapitalanleger.

Bitte sehen Sie zu Raumaufteilung und Ausstattung die Grundrisse und Bilder im Exposé.

Lage

Das Haus befindet sich recht zentral in Fahrenzhausen, einer rund 5.000 Einwohner starken Gemeinde im westlichen Landkreis Freising. Die ausgewogene Mischung aus guter Infrastruktur am Ort und vielen Möglichkeiten zur Freizeitgestaltung zieht seit vielen Jahren Haus- und Wohnungssucher an. Die Nähe zum Flughafen (20 Minuten) und eine optimale Anbindung an die Fernstraßen machen Fahrenzhausen auch für Pendler und Geschäftsleute zu einem attraktiven Ort.
Die öffentliche Verkehrsanbindung besteht durch eine Busverbindung zur S-Bahn-Station in Unterschleißheim-Lohhof (8 km) sowie nach Dachau. Die Bavarian International School, oft kurz BIS genannt, ist mit Bus oder KFZ in wenigen Minuten zu erreichen.

Ausstattung

2 Bäder plus Gäste-WC, alle raumhoch gefliest, und je mit Fenster;
Laminatböden in allen Schlafzimmern;
Eine gut ausgestattete und moderne Einbauküche (im Kaufpreis enthalten);
überdachter Balkon;
große Terrasse und Garten;
2 TG-Stellplätze; die Tiefgarage wurde 2023 generalsaniert und ist über den Kellerraum mit Schleuse erreichbar;

Eine detaillierte Baubeschreibung legen wir Ihnen auf Wunsch gerne vor.

Sonstiges

Der Kaufpreis beträgt EUR 640.000,- für das Haus inkl. Einbauküche, plus EUR 25.000,- für die beiden TG-Stellplätze, in Summe also EUR 665.000,-.
Beim Abschluss des notariellen Kaufvertrages stellen wir dem Käufer eine Nachweis- und/oder Vermittlungsprovision in Höhe von 2,00 % inkl. ges. MwSt. in Rechnung.
Wir haben einen provisionspflichtigen Maklervertrag mit dem Verkäufer in gleicher Höhe geschlossen.

Energieausweis

Energieausweis
VERBRAUCH
Energiepass Gültig bis
June 19, 2033
Verbrauchwert
65.4
Wertklasse
B
Energiepass Ausstellung
2023-06-20

Lage

Sicher & Schnell

Vollständiges Exposé anfordern

Wir stehen Eigentümern, Erwerbern, Immobilienagenturen etc. als Informationsquelle für individuelle Marktpreise gerne zur Verfügung.

Weitere Angebote

Das könnte Sie auch interessieren

Top Angebote von Ihrem Immobilienmakler aus Haimhausen: Ob Einfamilienhaus, Büro, Villa oder Ferienwohnung etc. Bei uns in Haimhausen werden Sie fündig.

Worauf warten Sie?

Hinterlassen Sie uns Ihre Anfrage

Wir bearbeiten Ihr Anliegen zeitnah und melden uns anschließend bei Ihnen, um Ihnen weiterzuhelfen.